找回密码
 注册

QQ登录

只需一步,快速开始

微信登录

微信扫码,快速开始

查看: 85825|回复: 0

[教育资讯] 700万玉林人的关注!30亿千亩教育城,万人高中正式开工!

[复制链接]
发表于 2021-3-30 20:21 | 显示全部楼层 |阅读模式 IP:广东东莞
3月30日上午8时,广西自治区重大项目--广西北流市新世纪教育城项目(以下简称新世纪教育城)开工仪式在玉容一级路往容县方向红领巾水库旁隆重举行!

dd7ab463f66cf21cdd4078b2c3ebd29b.jpg
玉林市及北流市政府领导、教育行业代表、媒体行业代表及其他各界精英代表出席开工仪式。

e8cf48a998a10b58d9795a9f635aa0b6.jpg
8点20分,新世纪教育城开工仪式在气势浩荡的开场鼓舞《盛世龙腾》中揭开活动序幕。

fa40a72367fedcf754d7fceaa72ce23f.jpg
广西新世纪实业有限公司董事李运荣介绍项目。

b0c6cb9518d8cb72222fe3cf650b5e2d.jpg
北流市委副书记、市长华海德上台致辞。

6696bc3a295eaa125b9551e43c8d1f2a.jpg
玉林市委常委、北流市委书记赵志刚宣布项目启动。

c23055aae741d5e53994026a393c34a3.jpg

e3aed7c2626ea91a0e42e4da76649d49.jpg
政府领导与项目领导进行培土仪式,标志着项目进入实质性建设阶段。

62ad830ee22710e1f4d6de58b3a4a302.jpg
不久的将来,这片热土将崛起一座伟大的“教育王国”



新世纪教育城项目概况

广西北流市新世纪教育城是北流市人民政府与广西新世纪实业有限公司签约的项目,已被列为2021年自治区层面统筹推进项目。

69f360ad92d5530ad0302eaf921da0ed.jpg
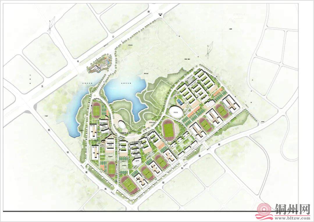
新世纪教育城位于北流市红领巾水库附近地块,计划投资30亿元建设,总占地面积1300多亩,规划校舍总建筑面积80多万㎡,内含幼儿园、小学部、初中部、高中部,可容纳在校生3万多人,是一所一站式全龄段教育学园
其中,高中部将率先投入建设,预计2022年陆续开展招生工作,2023年秋季首批学生入学。

c3510215d4643968e4dca9fec0dbb8f9.jpg
(广西北流市新世纪教育城总体平面图)




教育城高中部介绍

新世纪教育城高中部180个教学班,可容纳在校生1万多人,是一所全日制寄宿学校。不仅规划有宽敞明亮的多功能教学楼,还有生活设施配套齐全的学生宿舍;更拥有可容纳5000多人的综合体育馆室外国家标准泳池室内恒温游泳馆,藏书丰富的大型图书馆,以及1700多套公寓式教师宿舍

f57a2cdca232a41bc7bab973c04e1741.jpg
(广西北流市新世纪教育城高中部鸟瞰图)
所有教室、食堂、宿舍全部安装空调,引进智能化设备,为师生提供舒适便利的学习生活环境。

01·现代先进的办学理念
新世纪教育城以广东东莞最好的民办学校——东华高级中学为标准,引进名校办学模式,秉承其先进的教学理念,携手顶级教学团队,致力打造一所高标准现代化的全国知名学校

182acfec25bf009c82e76b5a10076107.jpg
新世纪教育城注重对学生德智体美的全面培养。在教学环境上,高中部校区建设艺术楼、实验楼、技能培训楼等多功能教学楼。在课程编排上,除了常规的高中课程外,还另外开设如计算机编程等前沿课程。发掘并尊重学生兴趣,培养多样化专业人才

524608f55968e8fe1f04ec9ad7c0927c.jpg
(新世纪教育城高中部行政楼及教学楼效果图)

02·舒适宽敞的生活环境
高中部南面规划3栋学生宿舍,皆为6层。首层作为食堂,包含学生食堂、教师餐厅、超市和厨房等。一人一餐位,可容纳5000多人同时就餐。2至6层是学生宿舍,每层可容纳800-1000人。

7095160a531865ec07bf8f9d448c99ff.png
(新世纪教育城高中部宿舍楼与篮球场效果图)
标准宿舍设置为8人间,按上床下桌标准配置,安装空调,生活设施完善。值得一提的是,每栋宿舍楼的两端均设置了楼梯和担架电梯,有效解决学生上下楼梯的分流问题以及学生应急运送的需要。

d862cf009d37570b2f104fba3b071d2f.png
(新世纪教育城高中部教学楼与运动场效果图)
除体育馆、泳游馆等室内运动场地外,高中部校区内还规划了3个标准足球场、多个篮球场及羽毛球场,丰富课余生活,强健师生体魄。

03·贴近自然的山水校园
新世纪教育城高中部依山傍水,绿化率高达39%,在原有山体、水库的基础上进行改造,利用得天独厚的地理条件,再加上精心设计的园林绿化景观,打造人与自然和谐共生的山水校园

19fdf0999d3284e353784f0b9126b9b7.jpg
(新世纪教育城高中部行政楼前环境效果图)
根据“还绿于民”的理念,新世纪教育城高中部计划面向社会公众打造零距离、零收费的全面开放式城市公园,以此加强校园与外界的交流,对外传达校园生活的美好。


d3a570972cbe8f094b360e1f658c4d95.gif

096285a61ec20f40649292e2fd8f69b9.jpg
广西北流市新世纪教育城,是北流市委、市政府为实施科教兴市战略,努力满足人民群众对优质教育资源的需求,促进北流市民办教育事业健康发展的重大举措。
项目建成招生后,将有效缓解玉林地区学校“入学难”“大班额”问题,为学生提供多种求学选择,为上级院校输送更多高素质合格生源,为玉林教育事业多元化发展注入强大动力。




广纳贤才

ef2eda015e5b77a062ee0e6730511dec.png
项目建设同步面向全国引进、招募优秀教育工作者及团队。先进的教学条件、宽敞的生活环境、优越的薪资待遇,诚邀全国有才有志之士,共同谱写广西民办教育新篇章。


af9e8149831f25d75e4fdb25f414ef42.png 微信号:XSJ-yulin扫码关注更多消息               
您需要登录后才可以回帖 登录 | 注册

本版积分规则

快速回复 返回顶部 返回列表